농가형 모델
- 생활특성을 고려한 외부공간 연계 계획
- 농기구 등 보관을 위한 공간마련
- 재실인원 증가를 고려한 별채 제안
- 가족구성원 변동 시 민박활용 계획 고려
[2019] 산림-농가-25 (주택유형 : 목조 / 면적 : 84.24 (㎡) )


[2019] 산림-농가-33A ( 주택유형 : 목조 / 면적 : 110.16 (㎡) )


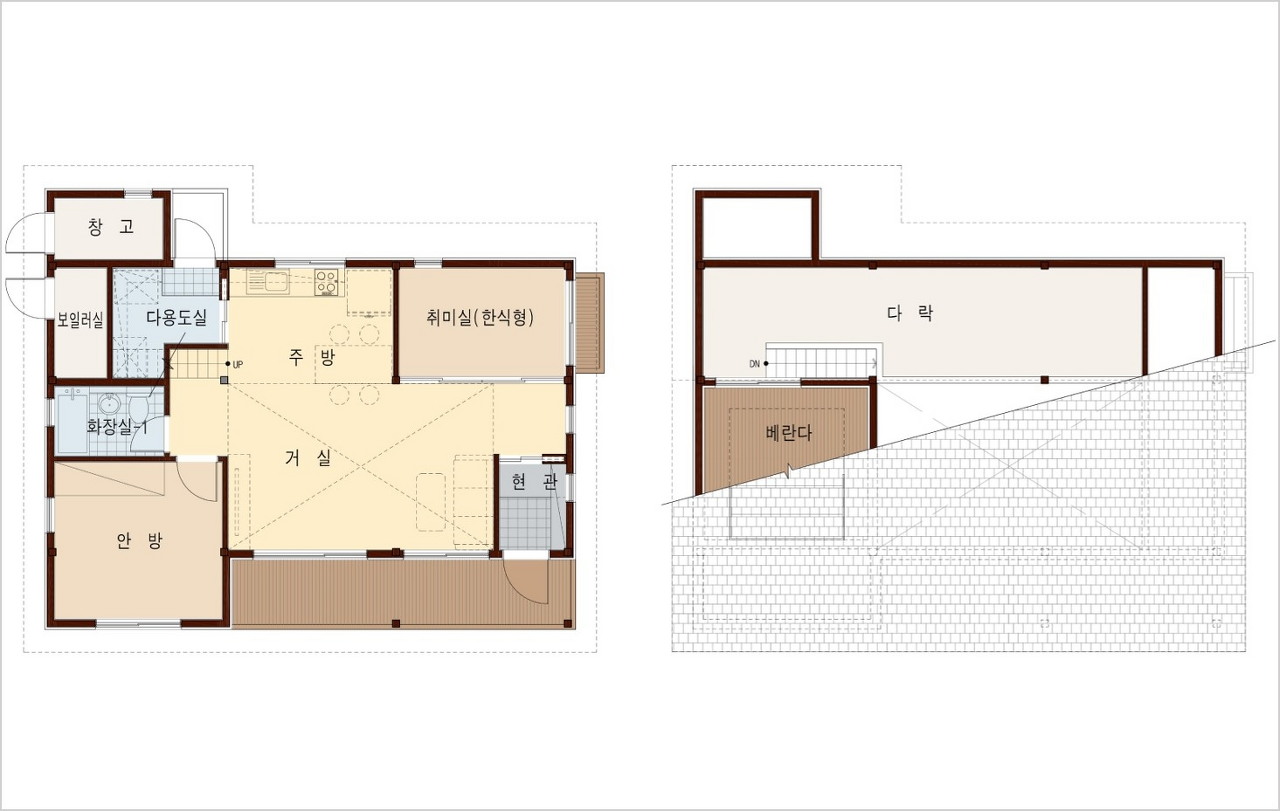
[2019] 산림-농가-41 ( 주택유형 : 목조 / 면적 : 136.08 (㎡) )


귀촌형 모델
- 귀촌인을 위한 실내공간 계획
- 전원생활을 고려한 다락 및 발코니 계획
- 취미실(한식형) 공간 확보
[2019] 산림-귀촌-19 ( 주택유형 : 목조 / 면적 : 63 (㎡) )


[2019] 산림-귀촌-25A ( 주택유형 : 목조 / 면적 : 81 (㎡) )


[2019] 산림-귀촌-25A ( 주택유형 : 목조 / 면적 : 84.6 (㎡) )


[2019] 산림-귀촌-32 ( 주택유형 : 목조 / 면적 : 108 (㎡) )


Q. 표준설계도는 이용 할수 있는 대상이나 지역 또는 조건이 정해져 있는지?
⇒ 대한민국 국민이라면 누구나, 어느 지역에서나 표준설계도를 이용하실 수 있습니다
Q. 현재 보급되고 있는 목조주택 표준설계도 이용 시 현행 건축법의 변경된 기준에 따라 설계변경을 하여야 하는지?
⇒ 아닙니다. 현재 국토교통부 승인 받은 8종의 표준설계도서는 2019년에 승인된 도면이며, 표준설계도는 5년마다 건축법 등 관계법령에의 적합 여부 등을 검토하도록 되어 있으므로, 그 기간 동안 건축법이 변경되더라도 현행의 표준설계도를 그대로 활용할 수 있습니다. (표준설계도서 등의 운영에 관한 규칙 제8조)
Q. 목조주택 표준설계도 이용 시 장점은 무엇인가요?
⇒ 인허가 절차가 건축신고로 완화되어 일반건축물보다 필요서류(배치도, 건축계획서)와 검토기간이 짧아집니다. 표준설계도는 건축설계시 평면 및 입면 구상에 소요되는 시간을 단축할 수 있고 시공업체가 대충 작성하여 공사를 진행함으로 발생하는 시공자와의 마찰을 사전에 방지할 수 있습니다. (표준설계도를 이용하여 사전에 시공 견적서를 받고 자재품목에 대해 미리 협의할 필요 있음). 산림청 목조주택 표준설계도는 산림청 주관 하에 목조건축 전문가들이 참여하여 개발한 후 여러 차례의 기술심의를 거쳐 국토교통부가 인정·공고하는 도면입니다. 이 설계도를 활용하면 에너지효율이 높고 안전한 양질의 주택을 지을 수 있습니다
Q. 목조주택 표준설계도로 시공 시 공사비용은 얼마나 드나요?
⇒ 안전하고(구조, 지진, 화재) 쾌적한(공간구성, 단열, 채광, 유지관리) 목조주택을 합리적인 수준에서 건축할 수 있도록 바닥면적 1㎡당 180만원 ~ 210만원(2019년, 수도권 기준) 공사비가 책정되도록 설계하였습니다. 다만, 같은 설계라 하더라도 업체별, 형태별로 가격이 다양하고 지역 및 시기에 따라 달라질 수 있습니다.
'러시아 사스나 통나무하우스' 카테고리의 다른 글
| 러시아 통나무 하우스 제작 과정 (0) | 2021.11.24 |
|---|